ER-16563-BT

Add-A-Rack (Rack w/o sides) – Fits Economizer Rack ER-16513

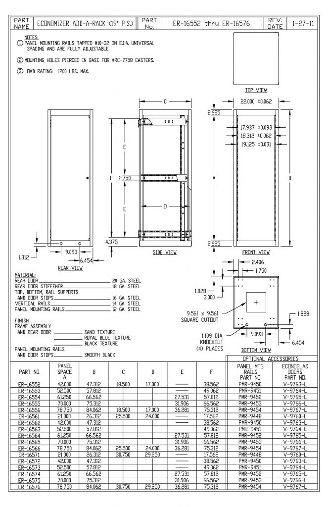
Product Details

Model # ER-16563-BT Add-A-Rack Series
  • When it is desirable to develop a series of racks into an integral system, Add-A-Rack assemblies can be used to obtain the optimum width and, at the same time, reduce costs considerably
  • Assembly consists of welded frame, rear door and one pair of panel mounting rails
  • Fits Economizer rack model ER-16513
  • Non-ventilated
  • 19-inch panel width
Check Stock / Pricing Request Modifications Compare Sizes and Models
External Size L x W x D: 57.81" x 22.00" x 25.50"
Internal Size L x W x D: 52.50" x 19.00" x 24.00"
Weight: 119 lbs
Color: Black Textured Powder Coated
EIA Width: 19 Inches

Drawing

Email me the STEP file

OTHER MODELS IN THIS SERIES

Model # External Dimensions Internal Dimensions
ER-16652-S 47.31" x 22.00" x 18.50" 47.3122.0018.50 42.00" x 19.00" x 17.00"
ER-16652-BT 47.31" x 22.00" x 18.50" 47.3122.0018.50 42.00" x 19.00" x 17.00"
ER-16552-BT 47.31" x 22.00" x 18.50" 47.3122.0018.50 42.00" x 19.00" x 17.00"
ER-16552-RB 47.31" x 22.00" x 18.50" 47.3122.0018.50 42.00" x 19.00" x 17.00"
ER-16652-RB 47.31" x 22.00" x 18.50" 47.3122.0018.50 42.00" x 19.00" x 17.00"
ER-16552-S 47.31" x 22.00" x 18.50" 47.3122.0018.50 42.00" x 19.00" x 17.00"
ER-16662-BT 47.31" x 22.00" x 25.50" 47.3122.0025.50 42.00" x 19.00" x 24.00"
ER-16562-S 47.31" x 22.00" x 25.50" 47.3122.0025.50 42.00" x 19.00" x 24.00"
ER-16562-BT 47.31" x 22.00" x 25.50" 47.3122.0025.50 42.00" x 19.00" x 24.00"
ER-16562-RB 47.31" x 22.00" x 25.50" 47.3122.0025.50 42.00" x 19.00" x 24.00"
ER-16662-S 47.31" x 22.00" x 25.50" 47.3122.0025.50 42.00" x 19.00" x 24.00"
ER-16662-RB 47.31" x 22.00" x 25.50" 47.3122.0025.50 42.00" x 19.00" x 24.00"
ER-16572-S 47.31" x 22.00" x 30.75" 47.3122.0030.75 42.00" x 19.00" x 29.25"
ER-16572-BT 47.31" x 22.00" x 30.75" 47.3122.0030.75 42.00" x 19.00" x 29.25"
ER-16672-S 47.31" x 22.00" x 30.75" 47.3122.0030.75 42.00" x 19.00" x 29.25"
ER-16572-RB 47.31" x 22.00" x 30.75" 47.3122.0030.75 42.00" x 19.00" x 29.25"
ER-16672-RB 47.31" x 22.00" x 30.75" 47.3122.0030.75 42.00" x 19.00" x 29.25"
ER-16672-BT 47.31" x 22.00" x 30.75" 47.3122.0030.75 42.00" x 19.00" x 29.25"
ER-16653-RB 57.81" x 22.00" x 18.50" 57.8122.0018.50 52.50" x 19.00" x 17.00"
ER-16653-S 57.81" x 22.00" x 18.50" 57.8122.0018.50 52.50" x 19.00" x 17.00"
ER-16653-BT 57.81" x 22.00" x 18.50" 57.8122.0018.50 52.50" x 19.00" x 17.00"
ER-16553-RB 57.81" x 22.00" x 18.50" 57.8122.0018.50 52.50" x 19.00" x 17.00"
ER-16553-BT 57.81" x 22.00" x 18.50" 57.8122.0018.50 52.50" x 19.00" x 17.00"
ER-16553-S 57.81" x 22.00" x 18.50" 57.8122.0018.50 52.50" x 19.00" x 17.00"
ER-16563-S 57.81" x 22.00" x 25.50" 57.8122.0025.50 52.50" x 19.00" x 24.00"
ER-16563-BT 57.81" x 22.00" x 25.50" 57.8122.0025.50 52.50" x 19.00" x 24.00"
ER-16663-RB 57.81" x 22.00" x 25.50" 57.8122.0025.50 52.50" x 19.00" x 24.00"
ER-16663-S 57.81" x 22.00" x 25.50" 57.8122.0025.50 52.50" x 19.00" x 24.00"
ER-16563-RB 57.81" x 22.00" x 25.50" 57.8122.0025.50 52.50" x 19.00" x 24.00"
ER-16663-BT 57.81" x 22.00" x 25.50" 57.8122.0025.50 52.50" x 19.00" x 24.00"
ER-16673-RB 57.81" x 22.00" x 30.75" 57.8122.0030.75 52.50" x 19.00" x 29.25"
ER-16673-S 57.81" x 22.00" x 30.75" 57.8122.0030.75 52.50" x 19.00" x 29.25"
ER-16573-S 57.81" x 22.00" x 30.75" 57.8122.0030.75 52.50" x 19.00" x 29.25"
ER-16573-BT 57.81" x 22.00" x 30.75" 57.8122.0030.75 52.50" x 19.00" x 29.25"
ER-16573-RB 57.81" x 22.00" x 30.75" 57.8122.0030.75 52.50" x 19.00" x 29.25"
ER-16673-BT 57.81" x 22.00" x 30.75" 57.8122.0030.75 52.50" x 19.00" x 29.25"
ER-16554-BT 66.56" x 22.00" x 18.50" 66.5622.0018.50 61.25" x 19.00" x 17.00"
ER-16554-RB 66.56" x 22.00" x 18.50" 66.5622.0018.50 61.25" x 19.00" x 17.00"
ER-16654-RB 66.56" x 22.00" x 18.50" 66.5622.0018.50 61.25" x 19.00" x 17.00"
ER-16554-S 66.56" x 22.00" x 18.50" 66.5622.0018.50 61.25" x 19.00" x 17.00"
ER-16654-S 66.56" x 22.00" x 18.50" 66.5622.0018.50 61.25" x 19.00" x 17.00"
ER-16654-BT 66.56" x 22.00" x 18.50" 66.5622.0018.50 61.25" x 19.00" x 17.00"
ER-16564-BT 66.56" x 22.00" x 25.50" 66.5622.0025.50 61.25" x 19.00" x 24.00"
ER-16664-RB 66.56" x 22.00" x 25.50" 66.5622.0025.50 61.25" x 19.00" x 24.00"
ER-16664-BT 66.56" x 22.00" x 25.50" 66.5622.0025.50 61.25" x 19.00" x 24.00"
ER-16664-S 66.56" x 22.00" x 25.50" 66.5622.0025.50 61.25" x 19.00" x 24.00"
ER-16564-S 66.56" x 22.00" x 25.50" 66.5622.0025.50 61.25" x 19.00" x 24.00"
ER-16564-RB 66.56" x 22.00" x 25.50" 66.5622.0025.50 61.25" x 19.00" x 24.00"
ER-16674-RB 66.56" x 22.00" x 30.75" 66.5622.0030.75 61.25" x 19.00" x 29.25"
ER-16674-BT 66.56" x 22.00" x 30.75" 66.5622.0030.75 61.25" x 19.00" x 29.25"
ER-16574-BT 66.56" x 22.00" x 30.75" 66.5622.0030.75 61.25" x 19.00" x 29.25"
ER-16574-RB 66.56" x 22.00" x 30.75" 66.5622.0030.75 61.25" x 19.00" x 29.25"
ER-16574-S 66.56" x 22.00" x 30.75" 66.5622.0030.75 61.25" x 19.00" x 29.25"
ER-16674-S 66.56" x 22.00" x 30.75" 66.5622.0030.75 61.25" x 19.00" x 29.25"
ER-16555-RB 75.31" x 22.00" x 18.50" 75.3122.0018.50 70.00" x 19.00" x 17.00"
ER-16555-S 75.31" x 22.00" x 18.50" 75.3122.0018.50 70.00" x 19.00" x 17.00"
ER-16655-S 75.31" x 22.00" x 18.50" 75.3122.0018.50 70.00" x 19.00" x 17.00"
ER-16655-BT 75.31" x 22.00" x 18.50" 75.3122.0018.50 70.00" x 19.00" x 17.00"
ER-16655-RB 75.31" x 22.00" x 18.50" 75.3122.0018.50 70.00" x 19.00" x 17.00"
ER-16555-BT 75.31" x 22.00" x 18.50" 75.3122.0018.50 70.00" x 19.00" x 17.00"
ER-16565-BT 75.31" x 22.00" x 25.50" 75.3122.0025.50 70.00" x 19.00" x 24.00"
ER-16565-RB 75.31" x 22.00" x 25.50" 75.3122.0025.50 70.00" x 19.00" x 24.00"
ER-16665-S 75.31" x 22.00" x 25.50" 75.3122.0025.50 70.00" x 19.00" x 24.00"
ER-16665-BT 75.31" x 22.00" x 25.50" 75.3122.0025.50 70.00" x 19.00" x 24.00"
ER-16565-S 75.31" x 22.00" x 25.50" 75.3122.0025.50 70.00" x 19.00" x 24.00"
ER-16665-RB 75.31" x 22.00" x 25.50" 75.3122.0025.50 70.00" x 19.00" x 24.00"
ER-16575-BT 75.31" x 22.00" x 30.75" 75.3122.0030.75 70.00" x 19.00" x 29.25"
ER-16575-RB 75.31" x 22.00" x 30.75" 75.3122.0030.75 70.00" x 19.00" x 29.25"
ER-16575-S 75.31" x 22.00" x 30.75" 75.3122.0030.75 70.00" x 19.00" x 29.25"
ER-16675-RB 75.31" x 22.00" x 30.75" 75.3122.0030.75 70.00" x 19.00" x 29.25"
ER-16675-BT 75.31" x 22.00" x 30.75" 75.3122.0030.75 70.00" x 19.00" x 29.25"
ER-16675-S 75.31" x 22.00" x 30.75" 75.3122.0030.75 70.00" x 19.00" x 29.25"
ER-16656-RB 84.06" x 22.00" x 18.50" 84.0622.0018.50 78.75" x 19.00" x 17.00"
ER-16556-S 84.06" x 22.00" x 18.50" 84.0622.0018.50 78.75" x 19.00" x 17.00"
ER-16556-BT 84.06" x 22.00" x 18.50" 84.0622.0018.50 78.75" x 19.00" x 17.00"
ER-16556-RB 84.06" x 22.00" x 18.50" 84.0622.0018.50 78.75" x 19.00" x 17.00"
ER-16656-S 84.06" x 22.00" x 18.50" 84.0622.0018.50 78.75" x 19.00" x 17.00"
ER-16656-BT 84.06" x 22.00" x 18.50" 84.0622.0018.50 78.75" x 19.00" x 17.00"
ER-16566-BT 84.06" x 22.00" x 25.50" 84.0622.0025.50 78.75" x 19.00" x 24.00"
ER-16666-S 84.06" x 22.00" x 25.50" 84.0622.0025.50 78.75" x 19.00" x 24.00"
ER-16666-BT 84.06" x 22.00" x 25.50" 84.0622.0025.50 78.75" x 19.00" x 24.00"
ER-16666-RB 84.06" x 22.00" x 25.50" 84.0622.0025.50 78.75" x 19.00" x 24.00"
ER-16566-RB 84.06" x 22.00" x 25.50" 84.0622.0025.50 78.75" x 19.00" x 24.00"
ER-16566-S 84.06" x 22.00" x 25.50" 84.0622.0025.50 78.75" x 19.00" x 24.00"
ER-16576-S 84.06" x 22.00" x 30.75" 84.0622.0030.75 78.75" x 19.00" x 29.25"
ER-16576-RB 84.06" x 22.00" x 30.75" 84.0622.0030.75 78.75" x 19.00" x 29.25"
ER-16576-BT 84.06" x 22.00" x 30.75" 84.0622.0030.75 78.75" x 19.00" x 29.25"
ER-16676-RB 84.06" x 22.00" x 30.75" 84.0622.0030.75 78.75" x 19.00" x 29.25"
ER-16676-BT 84.06" x 22.00" x 30.75" 84.0622.0030.75 78.75" x 19.00" x 29.25"
ER-16676-S 84.06" x 22.00" x 30.75" 84.0622.0030.75 78.75" x 19.00" x 29.25"
Privacy Overview

This website uses cookies so that we can provide you with the best user experience possible. Cookie information is stored in your browser and performs functions such as recognising you when you return to our website and helping our team to understand which sections of the website you find most interesting and useful.